Skip to content

1050 Derril Road, Moorooduc, VIC, 3933

Moorooduc VIC 3933

  • 3 Bed
  • 1 Bath
  • 1 Toilet
Contact Agent
Auction: 22nd Aug 2025 (2:00 pm)
Enquire now

Elders Rural Services, Pakenham, is proud to be offering this beautiful piece of farmland in the heart of the Mornington Peninsula.

35.4 Hectares (87.5 Acres) of gently undulating pasture.
Privately located with dual access points from Derril Rd. and Bungower Rd.
An extensive tree lined lake running the length of the Western boundary and dotted with islands is a wonderful feature of the property and is a haven for water birds and native fauna.
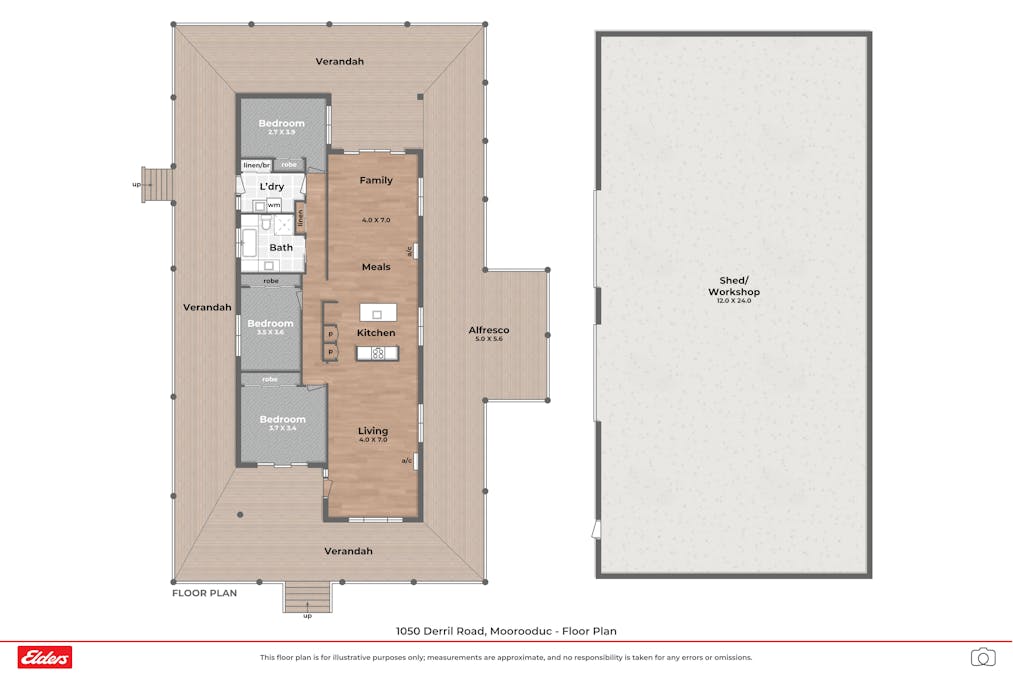
A comfortable, well designed 3BR home with full wrap around verandah is protected from wind and noise by established hedges.
Adjacent to the house is a fully enclosed, 24m x 12m Colourbond Machinery Shed / Workshop with power and full concrete flooring.
The farm is securely fenced into 6 main paddocks with laneway access to modern steel cattle yards. Approx. 2.5 kms of mature plantation belts provide excellent shelter for livestock and privacy from the outside world.
Brilliant location with easy access to Peninsula Link and close to Mornington, Mt. Eliza and all the wonderful attractions that make the Mornington Peninsula a world-renowned destination. 1050 Derril Rd. is not over capitalised and has the fundamental qualities that can be used for a huge variety of agricultural / lifestyle / tourism purposes.
To be auctioned on site, Friday 22nd August 2025 at 2.00pm.
Please contact Peter Rollason to arrange a private inspection.

Features

General Features

  • Bedrooms: 3
  • Bathrooms: 1
  • Land Area: 35.6hect (approx)

Homestead

  • Bedrooms: 3
  • Bathrooms: 1

Can I afford 1050 Derril Road, Moorooduc, VIC, 3933?

Whether you’re a first-time buyer, looking for your next home, or considering upgrading or downgrading, Elders Finance can unlock the doors to the right finance option for you and get you into the home of your dreams.

Calculators

Elders Real Estate Pakenham

Enquire about 1050 Derril Road, Moorooduc, VIC, 3933

Property guides and resources

From Growth to Income: Why Australian Investors Are Turning to Regional Commercial Property

For decades, Australian property investment has been built on a simple idea:…
Read more

How AI is Changing Home Renovation

Not long ago, home inspiration meant flipping through magazines, saving Instagram posts,…
Read more

Thinking of Selling? Here’s Where to Start in 2026

Selling a property is one of the biggest financial decisions many Australians…
Read more